Tiny houses: 5 consigli per realizzarne una

5 consigli per costruire una tiny house.

Un tipo di abitazione divenuta molto popolare è quello della tiny house, che letteralmente significa “casa minuscola”. Si tratta di case dalla superficie molto ridotta (anche solo 10 metri quadrati) essenziali e minimal, che vengono scelte per la loro economicità, ecosostenibilità e flessibilità. Nonostante gli innumerevoli vantaggi del vivere in una tiny house, pensare che per costruirne una, solo perché piccola, occorra anche un minore impegno progettuale è sbagliato, al contrario le ridotte dimensioni di queste abitazioni richiedono uno sforzo e una cura meticolosa dei dettagli e degli arredi. Ecco 5 consigli da non dimenticare se si intende realizzare una tiny house.

5 consigli per realizzare una tiny house

1. Le leggi urbanistiche

Controllare sempre le leggi urbanistiche di riferimento del luogo in cui ci si sta insediando.

Potrebbero esserci restrizioni e divieti anche per case di questo tipo, anche se si intende realizzarla su ruote. Anche se oggi si trovano esempi di tiny house in molte città del mondo, non è detto che sia possibile riproporre quella tipologia dappertutto.

2. L’attenzione ai dettagli

Se è vero che i piccoli spazi impongono molti limiti alla progettazione, allo stesso tempo è anche vero che offrono interessanti opportunità. Ogni centimetro è fondamentale e quindi si dovrà ragionare su come poterlo sfruttare, trovando soluzioni architettoniche che massimizzino lo spazio, giocando con la luce, l’arredamento, i materiali e i colori.

3. Arredi multifunzionali

Puntare sulla multifunzionalità degli arredi. Un buon modo per arredare i piccoli spazi, senza sacrificarne la qualità, è quello di scegliere soluzioni che siano adattabili e multifunzionali. Ad esempio, scegliere letti che possano diventare anche armadi, oppure scrivanie che diventino librerie, il design in questo caso viene in aiuto.

La tiny house di Parigi, di seguito inserita, è stata realizzata da Kitoko Studio ed è un esempio di un piccolo spazio reso multifunzionale grazie all’utilizzo innovativo dell’arredamento.

L’appartamento si sviluppa in lunghezza e su un’intera parete è collocato un armadio in grado di modellare lo spazio. Infatti, il mobile è suddiviso in più scompartimenti, all’interno dei quali sono integrati e combinati un letto, una scala, un tavolo, degli sgabelli, che possono essere aperti e richiusi all’occorrenza. Questo permette di trasformare l’abitacolo di 8 mq ora in camera da letto, cucina o sala.

 Gli interni della tiny house di Parigi di Kitoko Studio. Gli interni della tiny house di Parigi di Kitoko Studio.

 La pianta e l'organizzazione interna della tiny house di Parigi. La pianta e l'organizzazione interna della tiny house di Parigi.

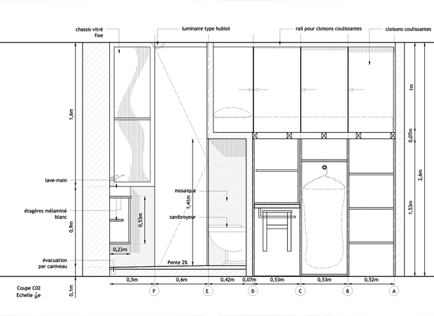
 La sezione mostra la parete attrezzata della tiny house di Kitoko Studio a Parigi. La sezione mostra la parete attrezzata della tiny house di Kitoko Studio a Parigi.

4. Le fondazioni e il tetto 

A seconda dell’uso che si prevede di fare della tiny house, al sito e all’area geografica in cui realizzarla, bisognerà pensare a come realizzarne le fondazioni. Ad esempio, se l’obiettivo è quello di renderla mobile, si potrà scegliere di costruirla su ruote o slitte. Al contrario, se la tiny house non sarà trasportabile, si potrà optare per fondazioni su pali o lastre di cemento. Ovviamente tenendo in considerazione le normative a riguardo. Importante inoltre è decidere come realizzare il tetto, ovviamente considerando, tra le altre variabili, il clima del luogo.

5. I materiali

Che sia mobile o fissa, una delle caratteristiche delle tiny houses risiede nella predilezione di materiali riciclati ed ecocompatibili, per ridurre l’impatto ambientale del piccolo edificio e i costi di costruzione. Il risparmio da ricercare scegliendo di impiegare materiali ecologici o provenienti da riciclo non è solo quello economico, ma va inteso anche dal punto di vista energetico, perché riducendo emissioni e consumi si può rendere davvero una tiny house una casa più sostenibile.

La tiny house di Sidney ha come caratteristica quella di essere realizzata per oltre il 95% da materiali riciclati. È interessante inoltre che il progetto nasce dalla collaborazione tra James Galletly, il costruttore, e the Bower, un cantiere di recupero della città che ha fornito la maggior parte del materiale utilizzato.

Il materiale riciclato è stato impiegato sia per la struttura sia per gli arredamenti. All’esterno la tiny house ha un rivestimento impermeabile, composto da allume di zinco, combinato a lamiera ondulata e recinzioni in legno. Per le mura interne è stato utilizzato un prodotto a base di vetro riciclato e sabbia, chiamato “earthwool”, che le rende isolanti.

Anche in questo caso, come nell’esempio precedente di Parigi, oggetti e arredi sono stati progettati in modo da sacrificare il meno possibile lo spazio, utilizzando inoltre materiali riciclati. Infine, a rendere la tiny house australiana più sostenibile è il sistema di illuminazione a LED alimentato da energia solare.

Graziella Pillari

Graziella Pillari Architetto

Torinese, ama l’arte, l’ambiente e la danza. Volontaria WWF-young, studia per diventare consulente ambientale oltre che una ballerina di danza classica e contemporanea.